中华人民共和国电力工业部部标准
DL103—80
太 乳 炸 药
中华人民共和国电力工业部 发布 1980年7月1日 实施
湖南省水利电力局 提出 湖南省高压送变电维修公司 起草
1 定义和用途
1.1 以太安(非钝化)为主爆剂,以配合胶乳为粘接剂的片状混合炸药,称为太乳炸药。
1.2 太乳炸药是专为架空电力线接头爆炸压接而设计的,具有低密度,中爆速的特点,除了适用于架空电力线(包括导线和地线)接头的压接外,也适用于接地网,钢筋混凝土电杆、电缆终端头缆芯、铝包钢线、板线、变电站和电厂管形硬母线连接,以及矩形铝汇流排等的焊接。
2 技术要求
2.1 太乳炸药的组成成分应符合下表要求:
|
名称 |
成分(%) |
||
|
太 安 |
配合胶乳(干量) |
四氧化三铅 |
|
|
太乳炸药 |
75 |
20 |
5 |
注:根据加工工艺和使用要求,配合胶乳和四氧化三铅中允许加入少量其它成分,如发泡剂,石墨等,但加入附加物后,不得影响其成药爆炸性能。
2.2 太乳炸药的性能应符合以下要求:
(1)外观:平整,不许有空洞、分层、松散、发粘和明显变形;
(2)伸长率:250%以上(厂控指标);
(3)定伸200%永久变形10~20%(厂控指标);
(4)厚度:5.0±0.5mm;
(5)密度:0.85~0.98g/cm3;
(6)爆速:3200~3900m/s。
3 包装与标志
3.1 太乳炸药呈片状,其规格为:
5mm×520mm×340mm
3.2 装箱要求:
(1)太乳炸药两表面应涂上薄薄一层滑石粉;
(2)太乳炸药先整齐地装入专用牛皮纸袋内,然后装入特制的木箱内,盖好并用搭扣扣牢,铅封;
(3)木箱由厚度不小于15毫米的木板制成,木箱内中间加活动木隔板,其规格为(指内空):
200mm×360mm×600mm
3.3 每箱炸药30片,木箱中木隔板的空格内只许放置成药10片。
3.4 包装的木箱外面应标明以下标志:
(1)厂名;
(2)炸药名称、品号;
(3)规格;
(4)批号;
(5)制造日期;
(6)片数;
(7)毛重;
(8)体积;
(9)“防火、防潮、轻放”“不得与雷管存放在一起”等字样;
(10)炸药品标志(按GB 190—73危险货物包装标志规定)。
4 检查方法及验收规则
4.1 太乳炸药由制造厂质量检验部门进行验收。每箱产品出厂应附有质量检验合格证。
4.2 检验的规则如下:
(1)外观:每片均须进行;
(2)伸长率:定伸200%永久变形。厚度、密度和爆速三项按每1000片分成两组(500片为一组),每组抽取一片进行检验(其取样数量和方法按11条规定进行)。当试验结果有一项不合格时,在该组中加倍取样,全部指标合格后才验收,复验中有一项指标不合格时,则该组作不合格产品论处。
4.3 太乳炸药性能试验方法:
(1)外观:用目视和手摸方法进行;
(2)伸长率:定伸200%永久变形:按GB 528—65规定进行;
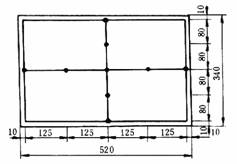
(3)厚度:用精度0.01mm的专用百分测量计测量。测量方法是在一片炸药上正交线上取9点(如图 1),取平均值,但每点的厚度应在5±0.5mm范围内。

图 1
(4)密度:采用称量及量取体积法进行。
称量,用感度1g的工业天平称取整片炸药重量。
体积用钢直尺测量整片炸药长度和宽度后,乘以已测的厚度平均值,求出体积,计算其密度。
(5)爆速:每片炸药切取两块样品,每块长320mm,包在BYD—185爆压搭接管上,用探针法测量,也可用导爆索测量,但用后者测量时,必须首先标定导爆索爆速。
注:制作太乳炸药原材料的太安和胶乳如不符合附录标准时,应首先制成炸药三片,按上述要求试验合格后方可成批生产。
5 保管运输
5.1 太乳炸药必须存放在通风良好的干燥仓库中。
5.2 太乳炸药的运输按公安部、铁道部有关危险品运输规定执行。
附 录
太乳炸药的原材料标准
(1)太安(见表1):
表1
|
项 目 |
单位 |
标 准 |
|
外 观 |
|
白色结晶粉末,允许有淡灰色,无机械杂质及明显的潮湿痕迹 |
|
熔 点 |
℃ |
不低于139.0 |
|
水分及挥发分 |
% |
不大于0.10 |
|
丙酮不溶物 |
% |
不大于0.08 |
|
灰 分 |
% |
不大于0.02 |
|
硅 土 |
% |
不大于0.01 |
|
游离酸 |
% |
无 |
|
80℃阿贝尔试验 |
|
不少于60.0分 |
|
110℃安定性试验 |
|
pH值不少于5.5 |
太安除符合上述标准外,其粒度一般要求70目以上的按重量比占90%。
(2)配合胶乳:
配合胶乳中的天然胶乳及配合剂(氢氧化钾、酪素、硫磺、促进剂PX或促进剂TT、氧化锌、防老剂D等)均应符合《胶乳工业原材料技术条件与试验方法》规定外。配合胶乳本身还必须达到下述指标要求(见表2):
表2
|
胶 乳 |
性 能 |
|||
|
总固体(%) |
粘度(cP)* |
pH值 |
氯仿值(级) |
|
|
配合胶乳 |
48~52 |
≤80 |
9.5~11 |
|
|
硫化胶乳 |
48~52 |
|
|
三级初~中 |
*1cP=0.001Pa.s。
(3)四氧化三铅:工业钝。
__________________________